


1 / 26
The Charles Mews comprises five luxury 3 bedroom mews houses and a stunning 4 bedroom detached coach house, nestled in the stylish and sought-after area of Alexandra Palace.
£995,000 - £1,395,000
Or call us on 020 8829 4090
Or call us on 020 3819 7111

Stunning collection of 3 and 4 bedroom homes located in this amazing area
Gorgeous Arabescato features included in all rooms throughout the homes
Fully integrated contemporary appliances that blend into the kitchen's sleek design
Beautiful private garden offering a seamless connection to nature
Amazing elevated high ceilings included in this fabulous home
Electrical air-sourced heating and an MVHR system
Approx. a 3 minute walk away from Alexandra Palace station
Complete and ready to move into!

Get in touch today for a lettings valuation on your property
| Floor plan | Price | Bedrooms | Sq Ft (approx) | |
|---|---|---|---|---|
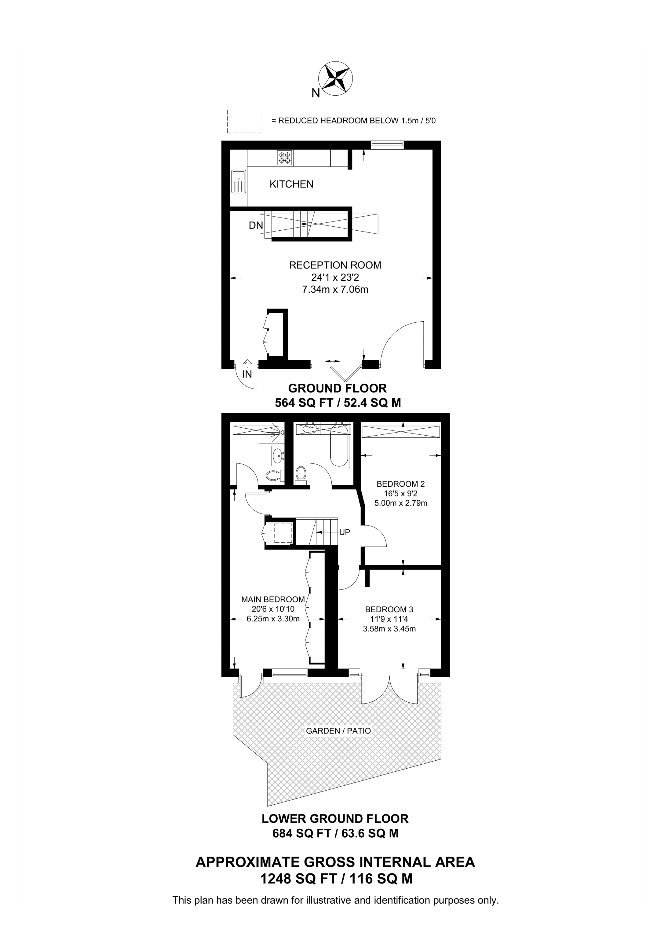
£995,000 West aspect. Ground floor house | 3 Beds | 1,248 Sq Ft116 Sq M | ||
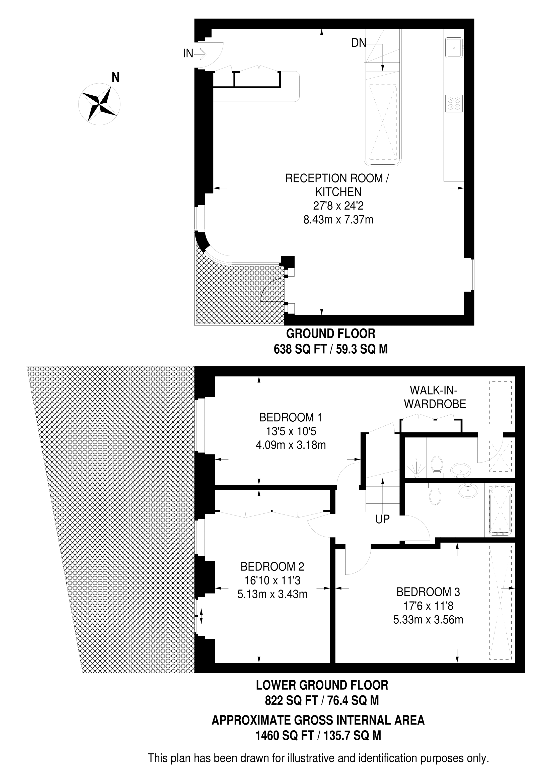
£1,200,000 West aspect. Ground floor house | 3 Beds | 1,460 Sq Ft136 Sq M | ||
£1,300,000 West aspect. Ground floor house | 3 Beds | 1,408 Sq Ft131 Sq M | ||
£1,395,000 South aspect. Ground floor house | 5 Beds | 1,746 Sq Ft162 Sq M |
Charles Mews is an exclusive collection of six eco-friendly mews houses nestled in a secluded section of the sought after Alexandra Palace. Each architecturally designed home is uniquely curated with generous living spaces, elevated ceiling height, and an exceptional level of finish never seen before in the area. The stunning tree-lined path of homes offer a serene and picturesque living experience, where every resident can enjoy the trendy area of Alexandra Palace that even highlights a farmers' market on Sunday's.