


1 / 10
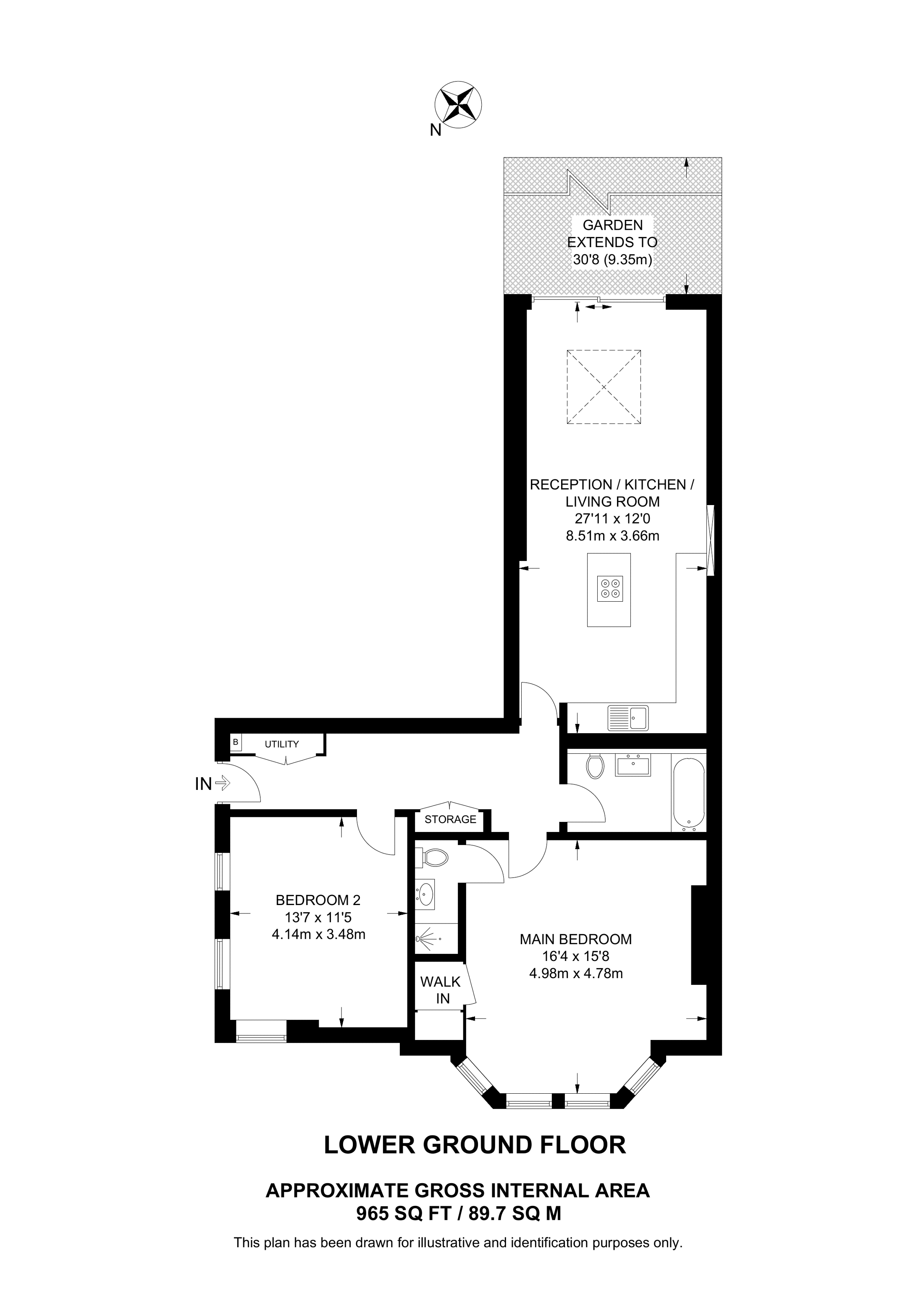
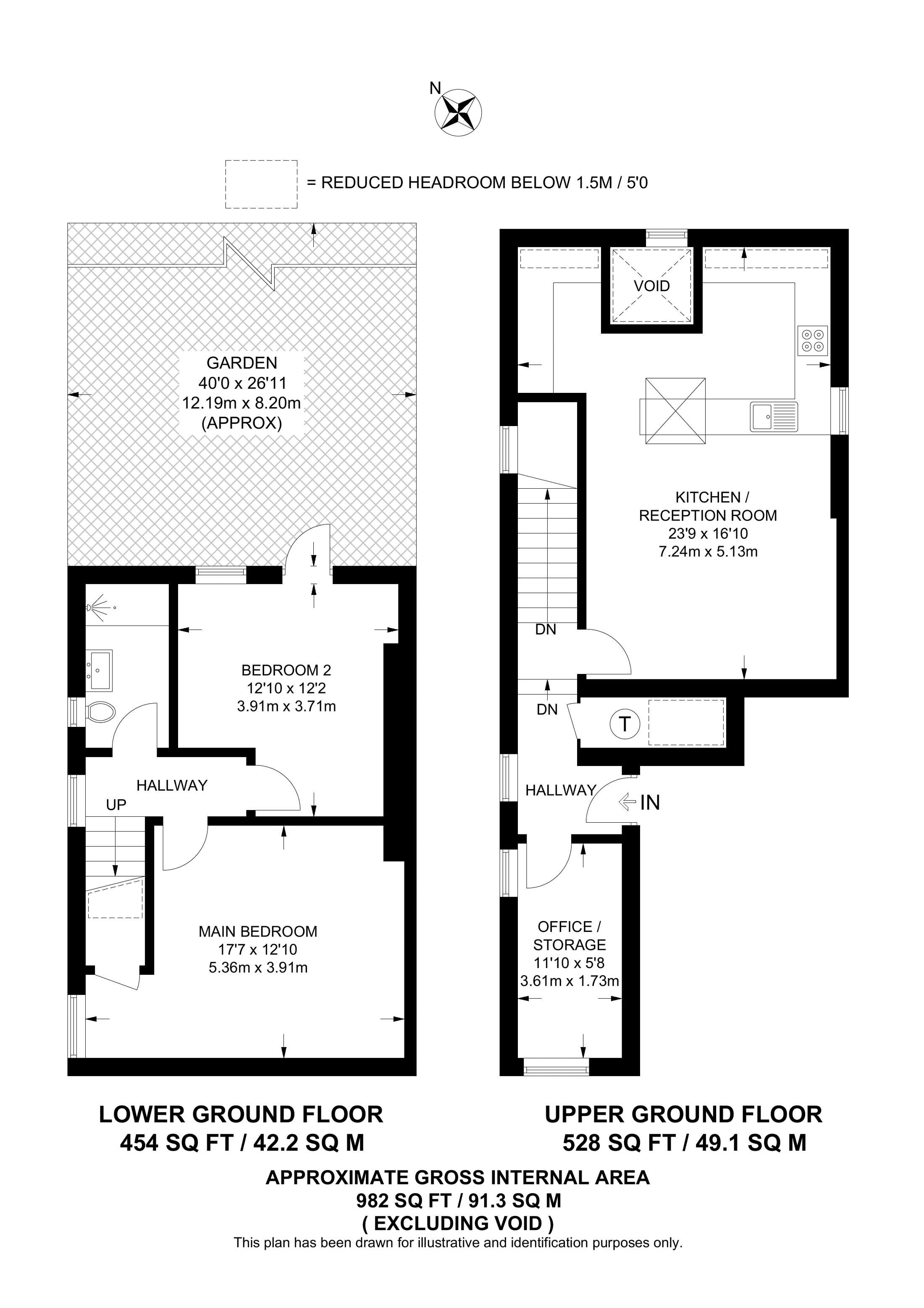
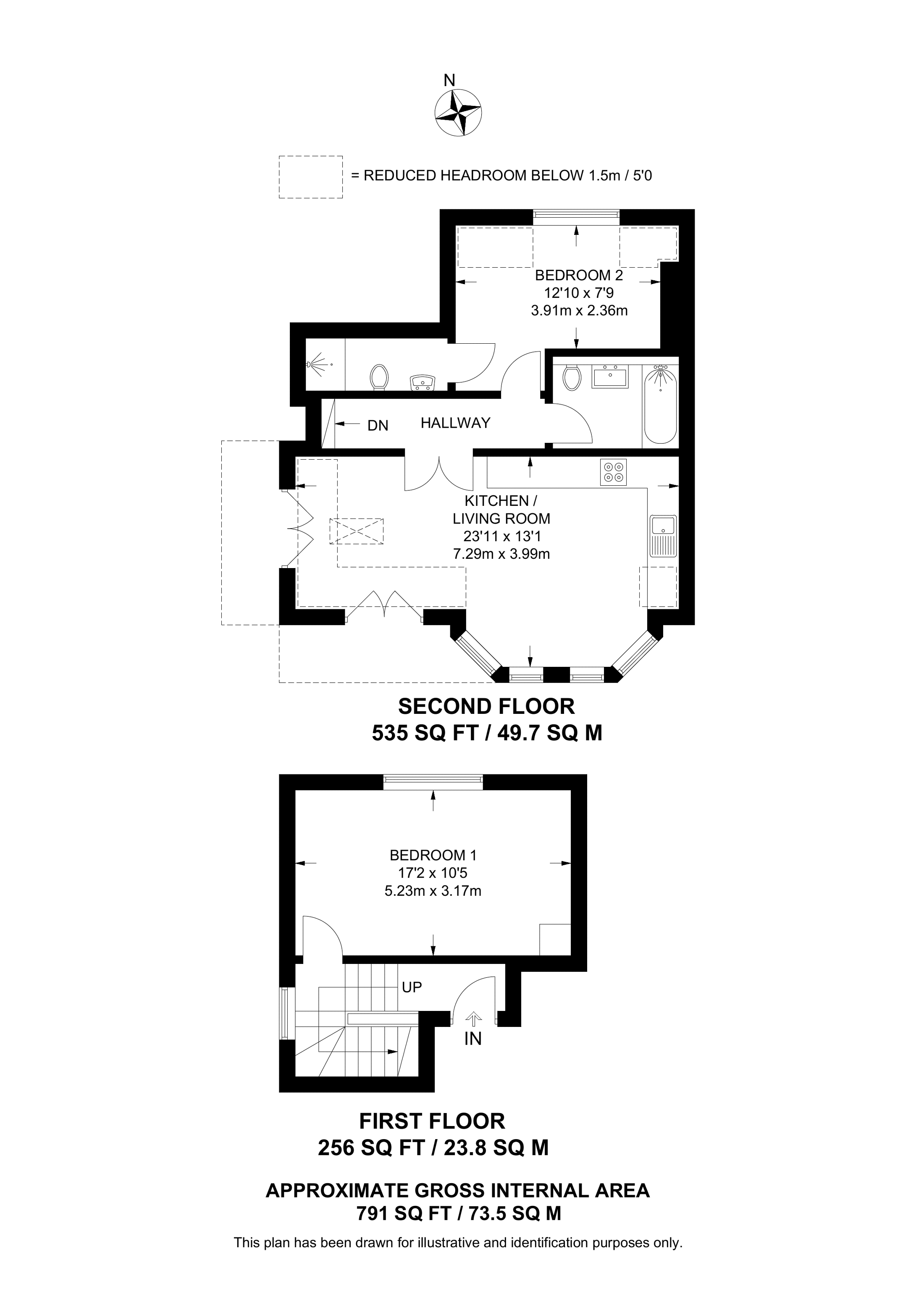
Brand new period conversion in the heart of Islington offering four spacious 2 bedroom apartments and one 1 premium home, each meticulously refurbished to an exceptional standard.
£775,000 - £975,000
Or call us on 020 8829 4090
Or call us on 020 3819 7111

Stunning range of 2 bedroom apartments and just 1 premium home
Beautifully crafted Victorian features, such as, skirting boards, mouldings along with herringbone flooring
Brilliant doubled glazed timber sash windows in all homes
Integrated Bosch appliances such as, microwave, electric glass hob and oven
Gorgeous black fitting en-suite bathrooms and brass fitting main bathrooms
Central-heating system with modern boiler in one apartment and electrical heating system with individual hot-water cylinders in the others
Ring security system in one apartment and an audio/video intercom in the others
Approx. an 8 minute walk from Caledonian Station, allowing you access to the Piccadilly Line

Get in touch today for a lettings valuation on your property
This stunning period conversion combines high-quality finishes, modern craftsmanship, and bright contemporary interiors, offering well- proportioned rooms, luxury kitchens, elegant bathrooms and thoughtfully designed living spaces throughout. In the heart of Islington you have an abundance of amenities at your doorstep! Explore local parks, visit the Emirates Stadium, browse antique shops or enjoy comedy and theatre performances.