


1 / 30
Introducing Manhattan Loft Gardens, where luxury meets innovation in the heart of the city. This ground-breaking destination redefines hospitality with its bold architecture, exceptional design, and unparalleled service.
£785 - £1,385 pw
Or call us on 020 7893 6000
Or call us on 020 3819 7111

Generous loft style apartments available furnished or unfurnished
Designed led living spaces with floor to ceiling windows
Integrated Siemens appliances, including washer/dryer
Underfloor heating & cooling system
High-speed fibre broadband and built-in surround sound
24-hour concierge team, offering room service, dog walking and grocery stocking
Co-working spaces, gym and wellness centre, events spaces, fully-equipped meeting rooms
Curated cultural events nurture community including yoga, resident parties, art installations,
| Floor plan | Price | Bedrooms | Sq Ft (approx) | |
|---|---|---|---|---|
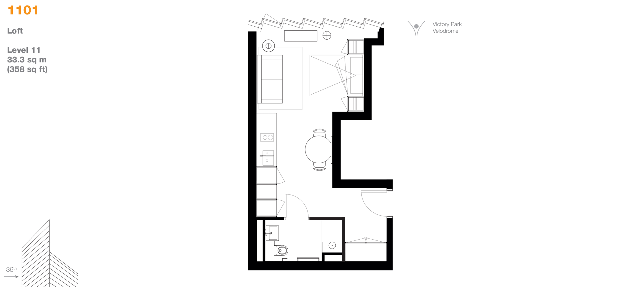
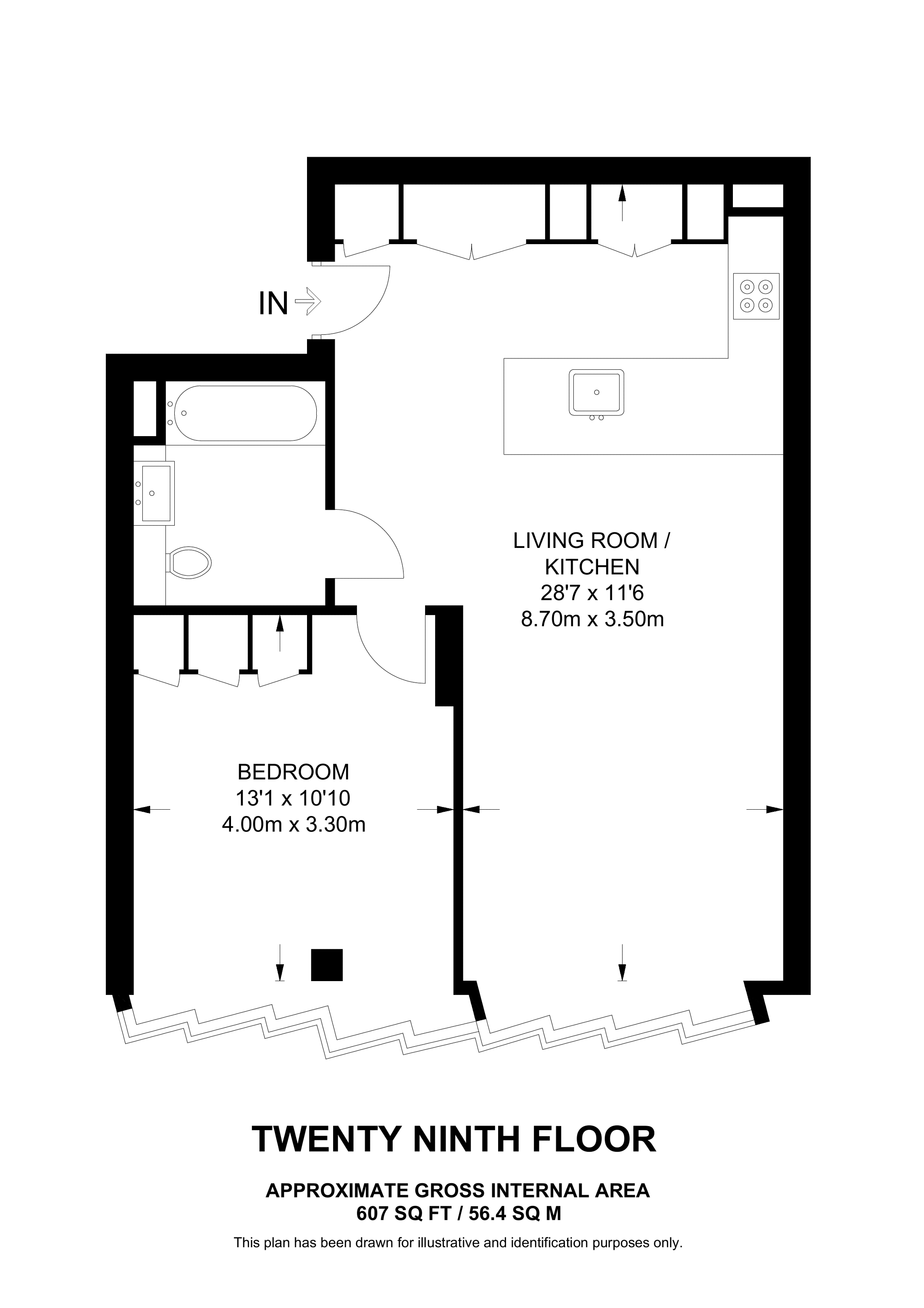
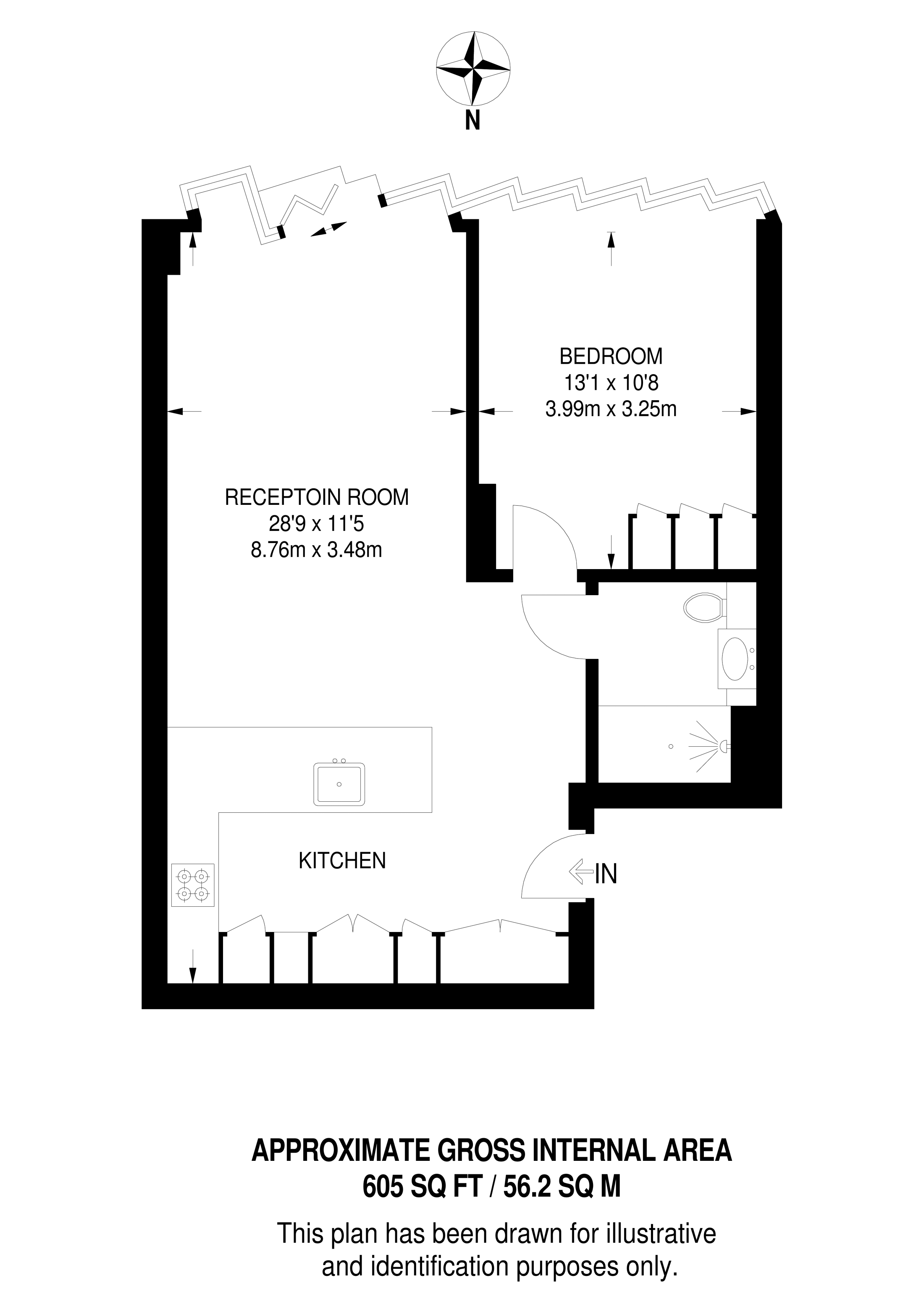
| 1 Bed | 607 Sq Ft56 Sq M | |||
| 1 Bed | 506 Sq Ft47 Sq M | |||
| 1 Bed | 661 Sq Ft61 Sq M | |||
| 1 Bed | 607 Sq Ft56 Sq M | |||
£808 pw £3,500 pcm 33rd floor flat | 1 Bed | 608 Sq Ft56 Sq M | ||
£808 pw £3,500 pcm 22nd floor flat | 1 Bed | 637 Sq Ft59 Sq M | ||
£808 pw £3,500 pcm 21st floor flat | 1 Bed | 636 Sq Ft59 Sq M | ||
£808 pw £3,500 pcm 18th floor flat | 1 Bed | 639 Sq Ft59 Sq M | ||
£923 pw £4,000 pcm 13th floor flat | 2 Beds | 50 Sq Ft5 Sq M | ||
£923 pw £4,000 pcm 12th floor flat | 2 Beds | 688 Sq Ft64 Sq M | ||
£923 pw £4,000 pcm 11th floor flat | 2 Beds | 696 Sq Ft65 Sq M | ||
| 2 Beds | 982 Sq Ft91 Sq M | |||
£969 pw £4,200 pcm 15th floor flat | 2 Beds | 766 Sq Ft71 Sq M | ||
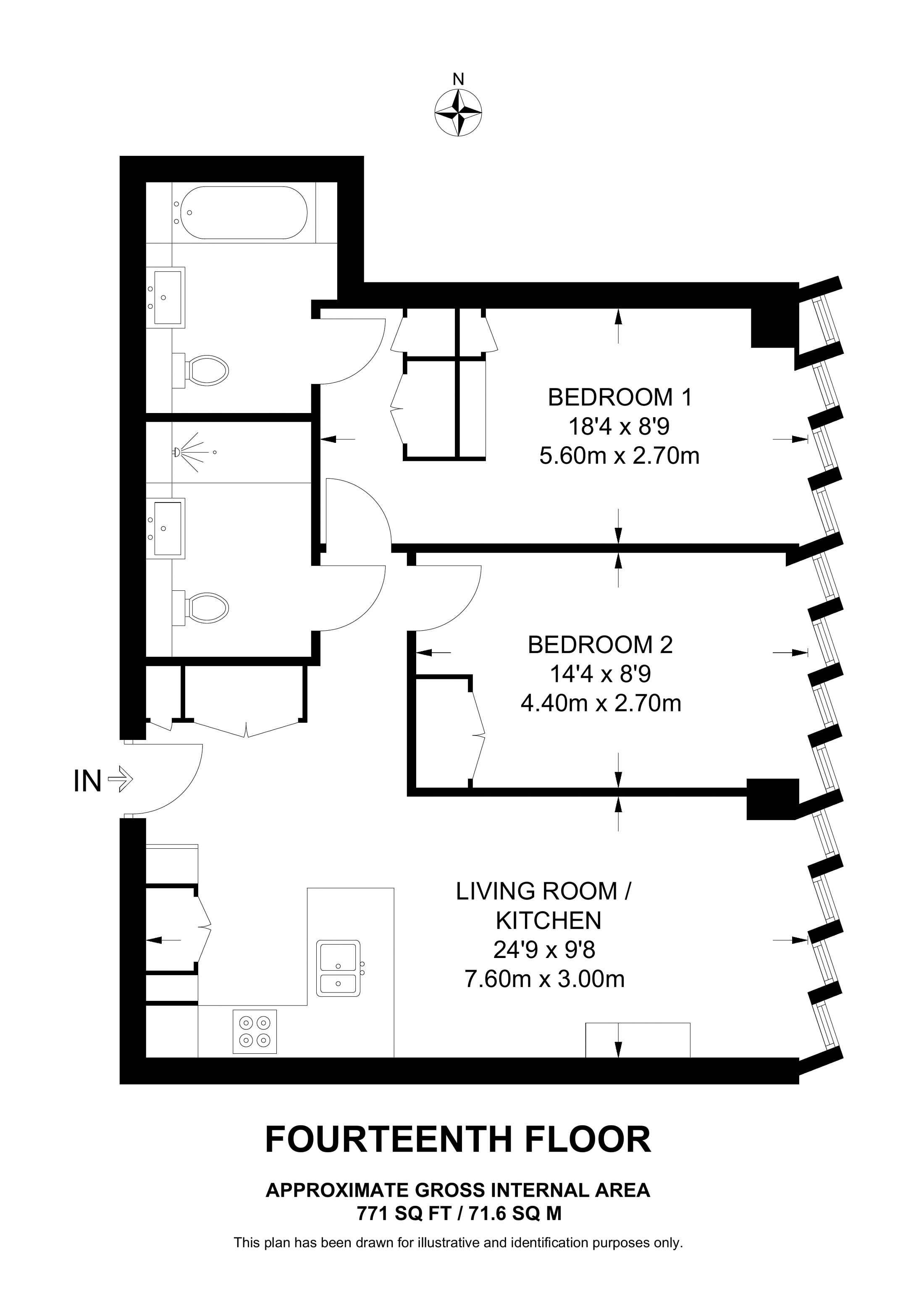
| 2 Beds | 771 Sq Ft72 Sq M | |||
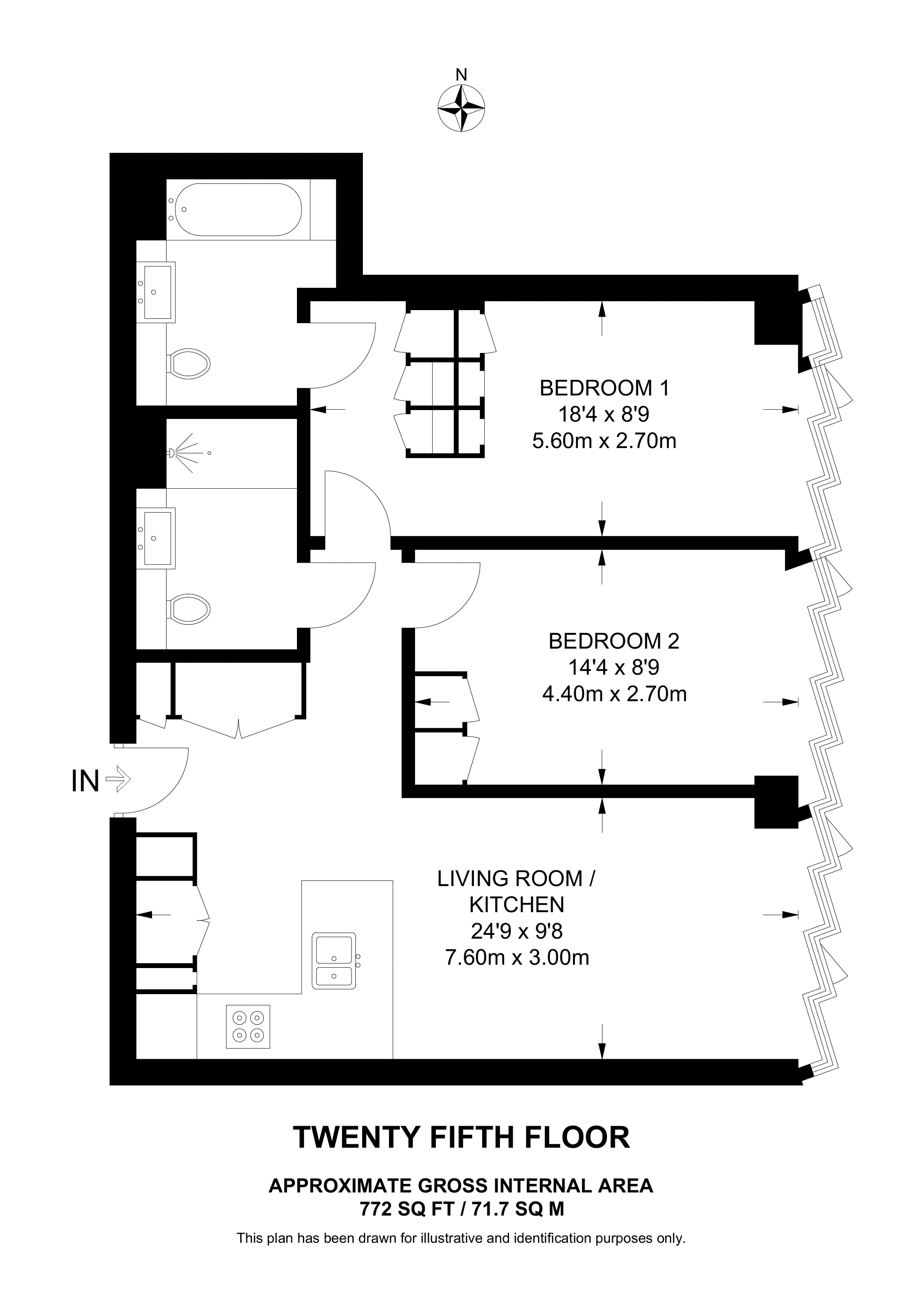
£969 pw £4,200 pcm 13th floor flat | 2 Beds | 772 Sq Ft72 Sq M | ||
£992 pw £4,300 pcm 8th floor flat | 2 Beds | 763 Sq Ft71 Sq M | ||
| 2 Beds | 993 Sq Ft92 Sq M | |||
| 1 Bed | 50 Sq Ft5 Sq M |
Manhattan Loft Gardens is situated moments from the shops and amenities that can be found in Westfield Stratford City, and the buzzing culture and nightlife of Hackney Wick. The green open spaces and world class sports facilities of the Queen Elizabeth Olympic Park are also within close proximity. Stratford and Stratford International Rail Station offer exceptional transport links.